「ただいま」と言いたくなる和モダンカフェ空間
-

-

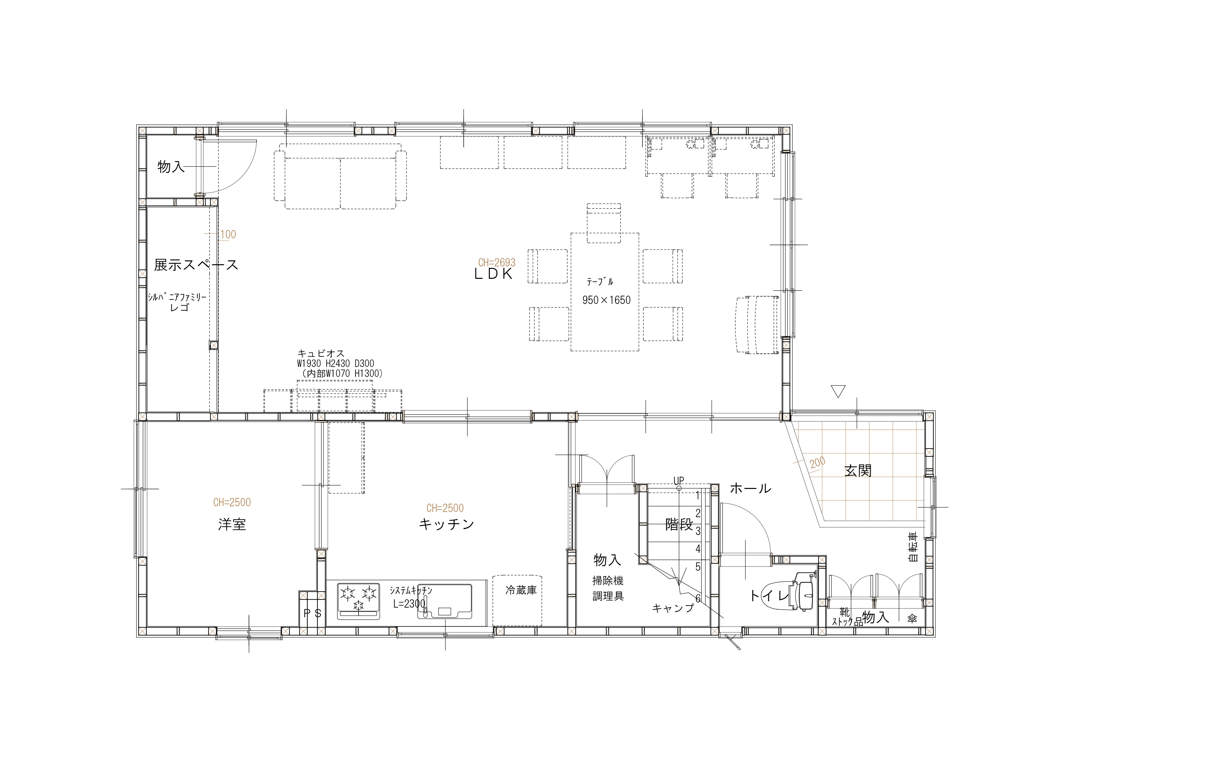
テーマは、『おしゃれな和風カフェ』。壁紙を使わずに漆喰を塗ることで、想いがこもりました。装飾を控えたシンプルな美しさが際立つ和モダン空間になりました。
-

-

キッチンは、対面型に変更。ご家族を見ながら調理ができるようになりました。
-

-

スイッチニッチに作った鍵かけがとても役立っています。
-

-
玄関ホール周りもスッキリしたデザインとたっぷり収納で使いやすい工夫がいっぱい。
ABOUT
| コンセプト | 「ただいま」と言いたくなる和モダンカフェ空間 | ||
|---|---|---|---|
| 施工種別 | LDK・キッチンリフォーム | 施工面積 | |





















