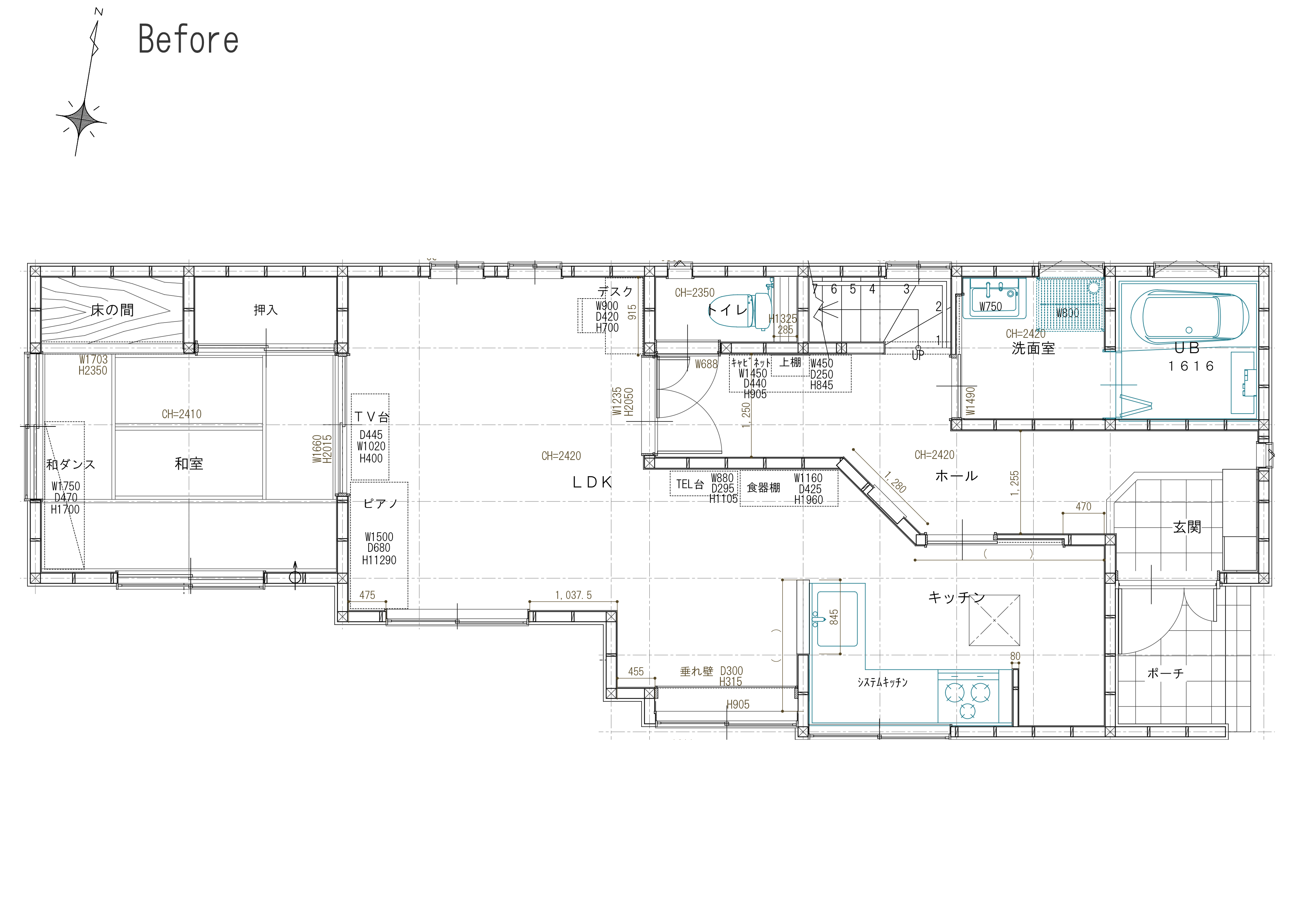
昔からあるものを大事にしたレトロモダンリフォーム
-

-

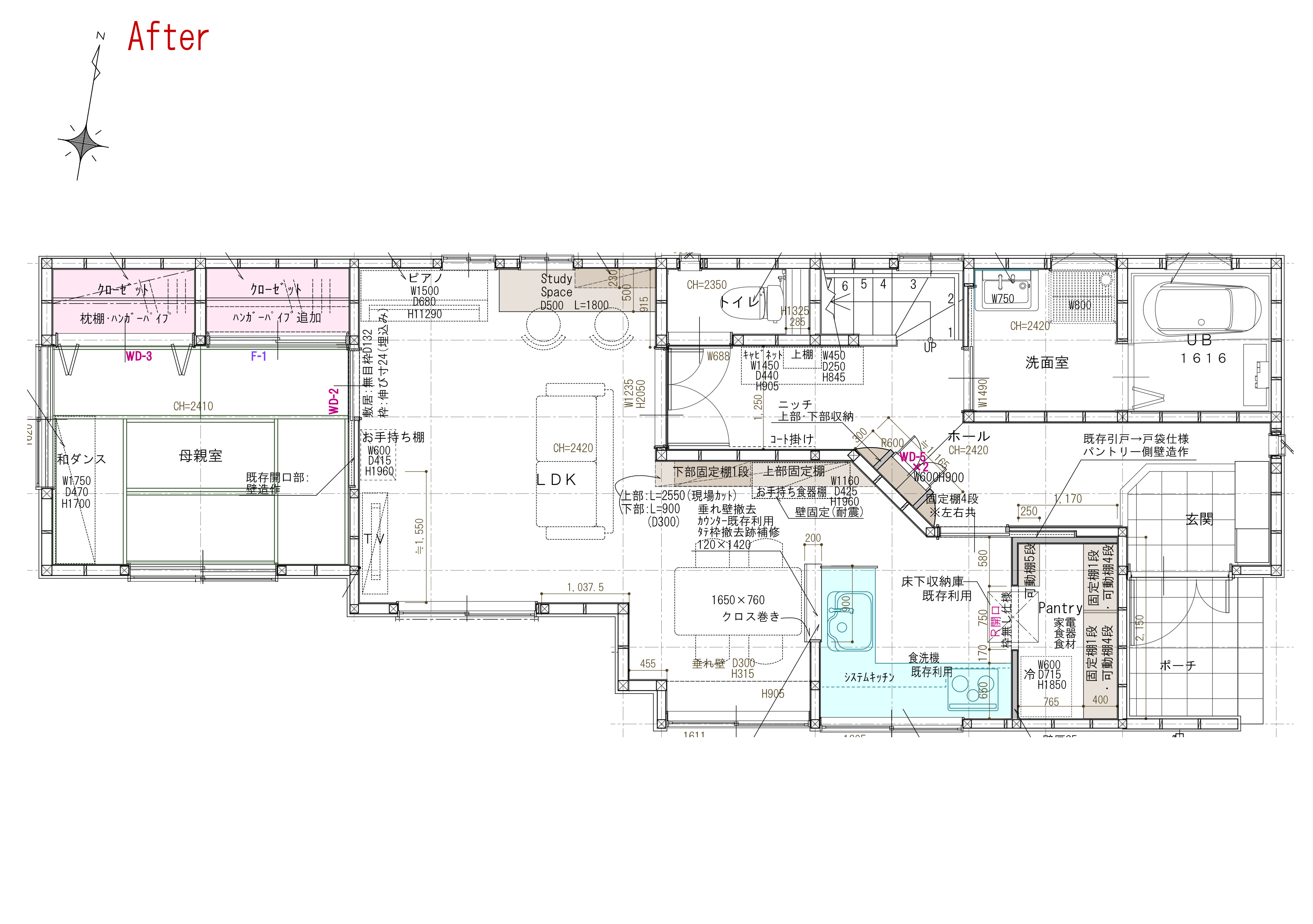
ダイニング側にあった吊り戸棚を取払い、ダイニングとの一体感を設計。既存家具との雰囲気が合うようにクラシックなアクセントクロスを配置し、レトロモダンなお部屋になりました。パントリーの入り口にはアーチを採用することでおしゃれに空間の広がりを感じられます。天井にはダウンライトを埋め込むことですっきりとしながら明るさを確保。
-

-

大きな窓であかりが入る玄関には凹凸のあるクロスを採用。光で模様が際立つこだわりの空間になりました。
-

-

玄関ホールにはニッチを新しく設計。思い出のものを飾りながら収納も確保した、素敵な空間になりました。
-

-

代々受け継がれてきた桐箪笥は使い勝手の良いようにリメイク。これからも衣類を守ってくれます。
ABOUT
| コンセプト | 昔からあるものを大事にしたレトロモダンリフォーム | ||
|---|---|---|---|
| 施工種別 | LDK・水廻りリフォーム | 施工面積 | 112 |























