「耐震強度を上げながらおしゃれで住みやすい家に」K様邸「耐震強度を上げながらおしゃれで住みやすい家に」K様邸

  • 耐震強度を上げ、さらにおしゃれで住みやすく」K様邸

  • 耐震強度を上げ、さらにおしゃれで住みやすく」K様邸

    築32年のお家の耐震改修工事。
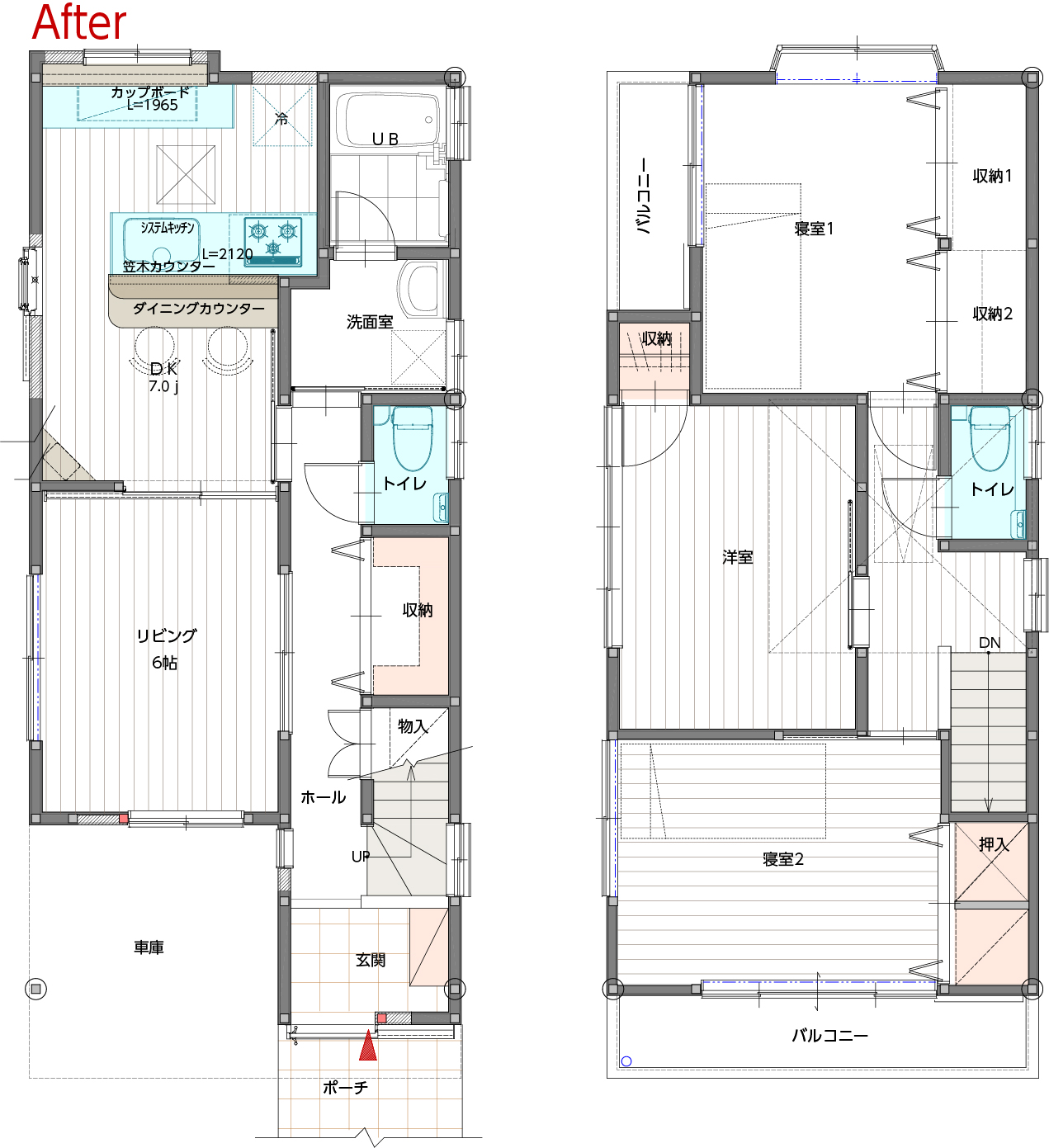
    設備を入れ替えキッチンはL字の小さいものから対面式で収納たっぷりのものに入れ替えました。

  • 耐震強度を上げ、さらにおしゃれで住みやすく」K様邸

  • 耐震強度を上げ、さらにおしゃれで住みやすく」K様邸

  • 耐震強度を上げ、さらにおしゃれで住みやすく」K様邸

  • 耐震強度を上げ、さらにおしゃれで住みやすく」K様邸

  • 耐震強度を上げ、さらにおしゃれで住みやすく」K様邸

  • 耐震強度を上げ、さらにおしゃれで住みやすく」K様邸

  • 耐震強度を上げ、さらにおしゃれで住みやすく」K様邸

  • 耐震強度を上げ、さらにおしゃれで住みやすく」K様邸

  • 耐震強度を上げ、さらにおしゃれで住みやすく」K様邸

  • 耐震強度を上げ、さらにおしゃれで住みやすく」K様邸

  • 耐震強度を上げ、さらにおしゃれで住みやすく」K様邸

  • 耐震強度を上げ、さらにおしゃれで住みやすく」K様邸

  • 耐震強度を上げ、さらにおしゃれで住みやすく」K様邸

  • 耐震強度を上げ、さらにおしゃれで住みやすく」K様邸

  • 耐震強度を上げ、さらにおしゃれで住みやすく」K様邸

ABOUT

コンセプト 耐震強度を上げ、さらにおしゃれで住みやすく
施工種別 戸建て全面リフォーム 施工面積 73.43²

PLAN

  • BEFOREBEFORE
  • AFTERAFTER